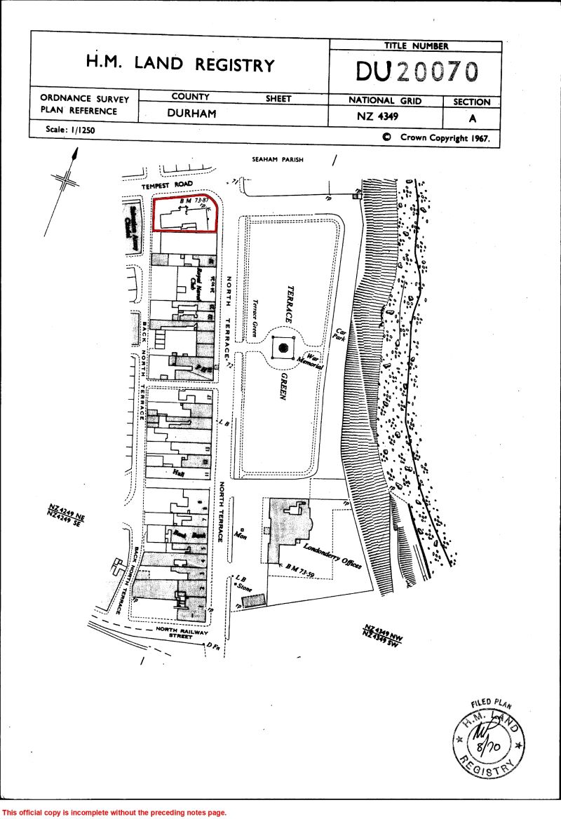
An exceptional development opportunity situated on the north side of 28–29 North Terrace in the heart of Seaham, County Durham. The site occupies a prominent position on one of Seaham’s most attractive and vibrant streets, within walking distance of the seafront promenade, Marina, and a range of local shops, cafés, and leisure facilities.
The land comprises a vacant site, bounded by a mixture of commercial, leisure, and residential uses, contributing to a well-established and active urban setting.
The land is situated on the north side of North Terrace in Seaham, a popular coastal town in County Durham. North Terrace is a well-regarded location, positioned close to Seaham’s vibrant seafront and marina, which offer a range of cafés, bars, and independent retailers. The surrounding area comprises a mix of residential and commercial properties, benefitting from excellent transport links via the A19, providing easy access to Sunderland, Durham, and Newcastle upon Tyne. Seaham Railway Station is also nearby, offering regular services along the Durham Coast Line. The location presents an attractive opportunity within a well-connected and thriving coastal setting.
* Generally speaking Guide Prices are provided as an indication of each seller's minimum expectation, i.e. 'The Reserve'. They are not necessarily figures which a property will sell for and may change at any time prior to the auction. Virtually every property will be offered subject to a Reserve (a figure below which the Auctioneer cannot sell the property during the auction) which we expect will be set within the Guide Range or no more than 10% above a single figure Guide.
Submit an enquiry and someone will be in contact shortly.
By setting a proxy bid, the system will automatically bid on your behalf to maintain your position as the highest bidder, up to your proxy bid amount. If you are outbid, you will be notified via email so you can opt to increase your bid if you so choose.
If two of more users place identical bids, the bid that was placed first takes precedence, and this includes proxy bids.
Another bidder placed an automatic proxy bid greater or equal to the bid you have just placed. You will need to bid again to stand a chance of winning.