Located off Alnmouth Road, the property offers spacious accommodation across two floors, a private garden, garage and parking whilst being in close proximity of the town centre.
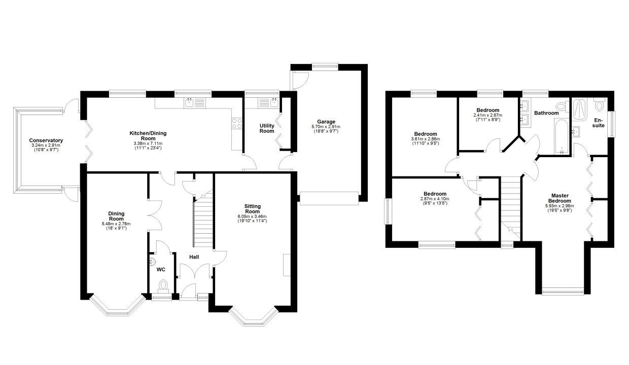
On entering, the porch leads into the spacious hallway with access to all ground floor rooms. The kitchen boasts space for a dining table and is equipped with wall and floor units, integral oven, gas hob and space for white goods. Off the kitchen is the conservatory which overlooks the garden and has direct access to it. A convenient utility if located off the kitchen providing more storage space, basin and access to the garage. Furthermore to the ground floor is the sitting room with gas fireplace and bay window overlooking the front of the property. The dining room is a versatile room which could be used an office/snug with glass inset doors leading off the hallway. The W.C. sits off the hallway complete with wash hand basin.
Stairs lead to the first floor, where the master bedroom is double in size and boasts fitted storage cupboards. This room benefits from an ensuite shower room comprising rainfall shower, W.C. and pedestal wash basin. There are three further bedrooms one of which boasts fitted wardrobes. The family bathroom completes the internal accommodation comprising bath, W.C. and dual basins.
Externally, the property is accessed via a shared gravel driveway leading to a large gravel area with parking, car port and garage. The garden is bounded by mature hedging, trees and shrubs creating a private garden area, most of which is laid to lawn.
The property is in need of modernisation in areas, however presents an exciting opportunity to acquire a well-positioned family home.
The property is located on Alnmouth Road a popular residential area within proximity to the town centre. The historic market town of Alnwick provides a wide range of amenities, including a variety of shops, restaurants, hotels, traditional pubs, a theatre/cinema, a leisure centre with swimming pool, and schools catering for all age groups.
Perfectly situated for exploring North Northumberland’s stunning coastline, Alnwick offers easy access to miles of sandy beaches, charming harbour villages, and magnificent historic castles. Excellent transport links include the nearby A1 trunk road, connecting north to Berwick and Scotland, and south to Morpeth and Newcastle upon Tyne, while further commuting options are available from the Main East Coast Railway Station at Alnmouth.
Services
Mains electricity, water and drainage. Gas central heating.
Tenure
Freehold
Council Tax
F
1. This lot is for sale subject to unconditional auction terms.
2. If the reserve price is met or exceeded, contracts will exchange with immediate effect upon the close of the auction.
3. Following exchange of contracts, parties have 28 days in which to complete the purchase (unless specified otherwise in the special conditions).
4. A non-refundable deposit of 5% is payable within 1 hour of the auction closing.
5. The winning bidder is to make payment to the auctioneer a reservation fee of 6% including VAT subject to a minimum of £6,000 including VAT. The reservation fee is payable in addition to the purchase price and is payable within 1 hour of the auction closing.
6. An administration charge of £714 including VAT is payable by the successful buyer within 1 hour of the auction closing.
7. A legal pack has been provided by the seller’s solicitor and is available to download. We strongly recommend reviewing this thoroughly and discussing any queries with your solicitor prior to bidding.
8. I acknowledge that the seller may accept my bid at any time prior to the scheduled auction end date.
* Generally speaking Guide Prices are provided as an indication of each seller's minimum expectation, i.e. 'The Reserve'. They are not necessarily figures which a property will sell for and may change at any time prior to the auction. Virtually every property will be offered subject to a Reserve (a figure below which the Auctioneer cannot sell the property during the auction) which we expect will be set within the Guide Range or no more than 10% above a single figure Guide.
Submit an enquiry and someone will be in contact shortly.
By setting a proxy bid, the system will automatically bid on your behalf to maintain your position as the highest bidder, up to your proxy bid amount. If you are outbid, you will be notified via email so you can opt to increase your bid if you so choose.
If two of more users place identical bids, the bid that was placed first takes precedence, and this includes proxy bids.
Another bidder placed an automatic proxy bid greater or equal to the bid you have just placed. You will need to bid again to stand a chance of winning.