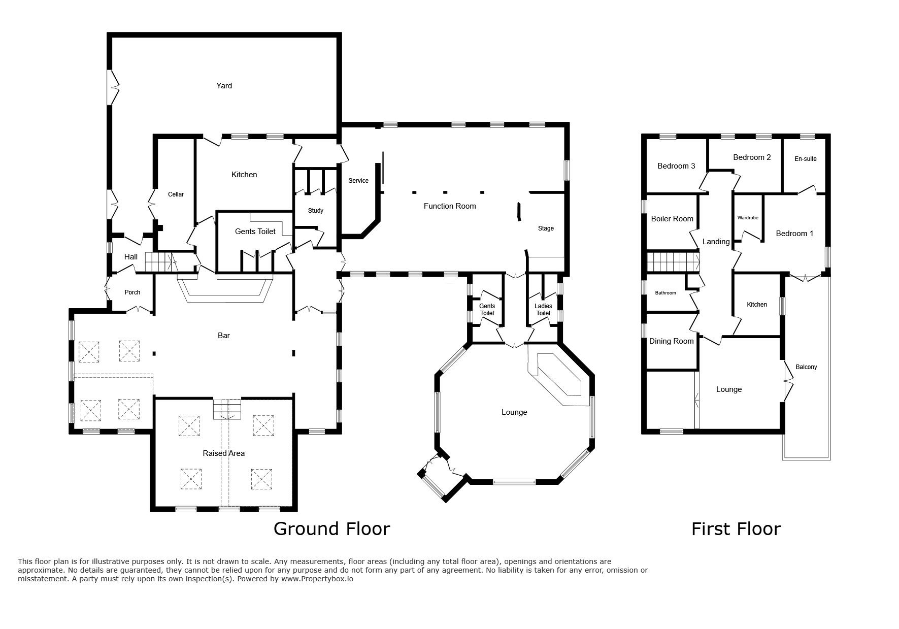
Waters Edge comprises a brick-built former public house dating from the 20th century, prominently positioned along the South Tyneside coastline. The site extends to approximately 0.82 acres (0.33 hectares), offering a substantial footprint in a highly desirable coastal location.
Subject to obtaining the necessary planning consents from the local authority, the property presents significant redevelopment potential and would be well-suited to a variety of alternative uses.
South Shields is located within the borough of South Tyneside and is a vibrant coastal town positioned on the south bank of the River Tyne. The property enjoys a prime seafront setting on the promenade at Long Beach, offering direct access to the coastline and stunning views. The surrounding area benefits from a wide range of amenities and attractions, including the renowned Colmans Seafood Temple, the popular Dunes Amusements, as well as various leisure facilities, cafés, and family-friendly activities.
The town is well connected for access to the local road network. The A19 is readily accessible via the A194 Newcastle Road. The A19 extends to North Tyneside via the Tyne Tunnel and to the south it extends to the likes of Sunderland and Teesside.
ADDITIONAL TERMS
1. This lot is for sale subject to unconditional auction terms.
2. If the reserve price is met or exceeded, contracts will exchange with immediate effect upon the close of the auction.
3. Following exchange of contracts, parties have 28 days in which to complete the purchase (unless specified otherwise in the special conditions).
4. A non-refundable deposit of 5% is payable within 1 hour of the auction closing.
5. The winning bidder is to make payment to the auctioneer a reservation fee of 6% including VAT subject to a minimum of £6,000 including VAT. The reservation fee is payable in addition to the purchase price and is payable within 1 hour of the auction closing.
6. An administration charge of £714 including VAT is payable by the successful buyer within 1 hour of the auction closing.
7. A legal pack has been provided by the seller’s solicitor and is available to download. We strongly recommend reviewing this thoroughly and discussing any queries with your solicitor prior to bidding.
8. I acknowledge that the seller may accept my bid at any time prior to the scheduled auction end date.
12/06/1986
125 years (85 years unexpired)
* Generally speaking Guide Prices are provided as an indication of each seller's minimum expectation, i.e. 'The Reserve'. They are not necessarily figures which a property will sell for and may change at any time prior to the auction. Virtually every property will be offered subject to a Reserve (a figure below which the Auctioneer cannot sell the property during the auction) which we expect will be set within the Guide Range or no more than 10% above a single figure Guide.
Submit an enquiry and someone will be in contact shortly.
By setting a proxy bid, the system will automatically bid on your behalf to maintain your position as the highest bidder, up to your proxy bid amount. If you are outbid, you will be notified via email so you can opt to increase your bid if you so choose.
If two of more users place identical bids, the bid that was placed first takes precedence, and this includes proxy bids.
Another bidder placed an automatic proxy bid greater or equal to the bid you have just placed. You will need to bid again to stand a chance of winning.