A beautifully maintained two-bedroom stone-built end terrace, forming part of the desirable Wortley Beck Mill development, available with no onward chain. Perfectly positioned in a popular area with excellent access to public transport, local shops, and scenic green spaces, this charming home offers a blend of modern comfort and character appeal making it an ideal choice for first-time buyers or investors alike.
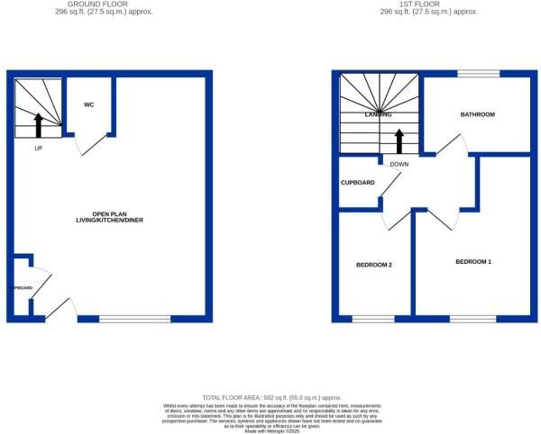
Step inside to discover a bright and inviting open-plan living space that combines the lounge and dining area with a stylish, contemporary kitchen. The kitchen is thoughtfully designed with sleek cabinetry, ample storage, high-quality work surfaces, and integrated appliances including an oven, grill, and fridge/freezer, with space for a washing machine.
Upstairs, there are two bedrooms a generous double and a flexible single room that would also make an excellent home office or guest room. The bathroom features a fresh modern suite with a shower over the bath, creating a clean and comfortable space.
Outside, the property benefits from an impressive wrap-around garden—mainly laid to lawn—and a versatile, insulated timber garden room, perfect for working from home, entertaining, or simply relaxing in privacy. Additional highlights include gas central heating, double glazing, and allocated parking, with extra visitor parking available.
Situated within easy reach of the Leeds Ring Road, this property provides straightforward links to the motorway network and Leeds city centre. Bramley train station and a large supermarket are just a short drive away, ensuring excellent commuter convenience and access to everyday essentials.
This is a fantastic opportunity to purchase a ready-to-move-into home in a highly regarded location. Early viewing is strongly advised.
Tenure: Freehold | Council Tax Band: B | EPC Rating Band: C | Unrestricted mobile phone coverage | Ultrafast Broadband available| Mains water, electricity, gas and drainage connected.
ADDITIONAL TERMS
1. This lot is for sale subject to unconditional auction terms.
2. If the reserve price is met or exceeded, contracts will exchange with immediate effect upon the close of the auction.
3. Following exchange of contracts, parties have 28 days in which to complete the purchase (unless specified otherwise in the special conditions).
4. A non-refundable deposit of 5% is payable within 1 hour of the auction closing.
5. The winning bidder is to make payment to the auctioneer a reservation fee of 6% including VAT subject to a minimum of £6,000 including VAT. The reservation fee is payable in addition to the purchase price and is payable within 1 hour of the auction closing.
6. An administration charge of £714 including VAT is payable by the successful buyer within 1 hour of the auction closing.
7. A legal pack has been provided by the seller’s solicitor and is available to download. We strongly recommend reviewing this thoroughly and discussing any queries with your solicitor prior to bidding.
8. I acknowledge that the seller may accept my bid at any time prior to the scheduled auction end date.
B
* Generally speaking Guide Prices are provided as an indication of each seller's minimum expectation, i.e. 'The Reserve'. They are not necessarily figures which a property will sell for and may change at any time prior to the auction. Virtually every property will be offered subject to a Reserve (a figure below which the Auctioneer cannot sell the property during the auction) which we expect will be set within the Guide Range or no more than 10% above a single figure Guide.
Submit an enquiry and someone will be in contact shortly.
By setting a proxy bid, the system will automatically bid on your behalf to maintain your position as the highest bidder, up to your proxy bid amount. If you are outbid, you will be notified via email so you can opt to increase your bid if you so choose.
If two of more users place identical bids, the bid that was placed first takes precedence, and this includes proxy bids.
Another bidder placed an automatic proxy bid greater or equal to the bid you have just placed. You will need to bid again to stand a chance of winning.